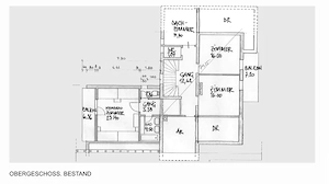
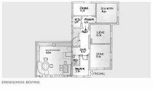
Das Wohnhaus Haus Montana befindet sich in Brand auf einem Grundstück mit ca. 950 m in Hanglage. Das Gebäude erstreckt sich über mehrere Geschosse. Im Kellergeschoss befinden sich Garage, Waschküche, Heizraum und Lagerflächen. Das Erdgeschoss umfasst Wohnzimmer mit Küche, Stube, Speis sowie einen privaten Bereich. Im Obergeschoss und Dachgeschoss liegen mehrere Zimmer, jeweils mit einer eigenen Nasszelle. Das Haus wurde ursprünglich als Wohnhaus errichtet und später erweitert. Eine Nutzung als Mehrfamilienhaus, Pension oder für touristische Vermietung ist möglich und insbesondere für Investoren geeignet. Für die Liegenschaft liegt bereits eine Baubewilligung für eine umfassende Sanierung und Erweiterung vor. Damit eröffnen sich attraktive Möglichkeiten zur Wertsteigerung und individuellen Gestaltung.
Baujahr: 1963
1973 Anbau Fremdenheim
1999 Errichtung Sonnenkollektoranlage
Grundstücksfläche: ca. 950 m
Bebaute Fläche: ca. 181 m
Gesamtgeschossfläche: ca. 671 m
Bauvolumen: ca. 1.733 m
Widmung: Bauwohngebiet (BW) und Freifläche (FF - in Umwidmung)
Energieausweis: vorhanden
Voll erschlossen (Wasser, Kanal, Strom, Telekom)
Großzügiges Grundstück mit Garten
Mehrere Balkone mit Bergblick
Ruhige, sonnige Lage nahe der Talstation Palüdbahn
Bushaltestelle direkt vor dem Haus
Gute Erreichbarkeit über öffentliche Straße
ID: 1776959599
Melden
Angebot machen
Empfohlene Anzeigen
Um diesen Anbieter zu kontaktieren, melde dich bei deinem ländleanzeiger.at Konto an oder erstelle schnell ein neues Konto.